菠菜论坛
菠菜论坛
菠菜论坛
|
/
关于菠菜论坛
|
/
悬臂起重机
桥式起重机
门式起重机
堆垛机及港口起重设备
|
/
常规产品起重机业绩
港口码头堆场起重机业绩
核电起重机业绩
|
/
智慧港口
|
/
新闻中心
新闻动态
产品知识
|
/
人力资源
|
/
联系菠菜论坛
1/2
上一个
下一个
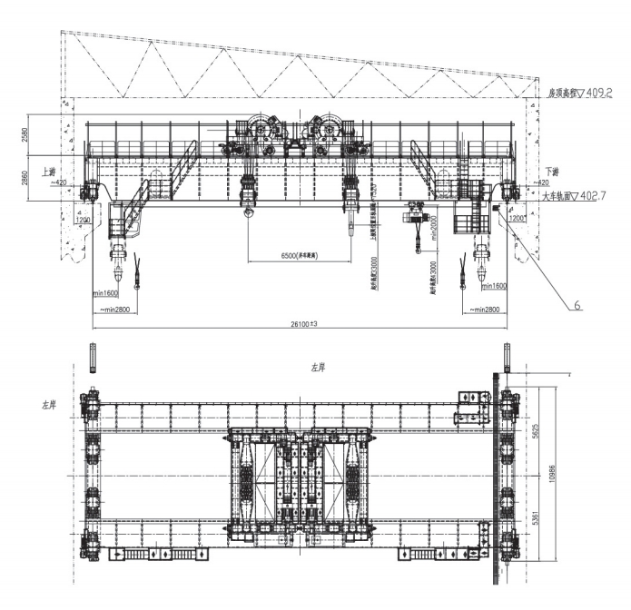
qe型—250t 250t 吊钩桥式起重机 -菠菜论坛
分享
额定起重重量(t)
250 250
跨度s(m)
22.5-40
工作级别
a3~a5
主要技术参数和尺寸
详见产品详情
0519-88610785
立即预约
产品详情
联系菠菜论坛
网站地图